Property Type
House, House
Parking
Garage: No, 4 parking
MLS #
R3053940
Size
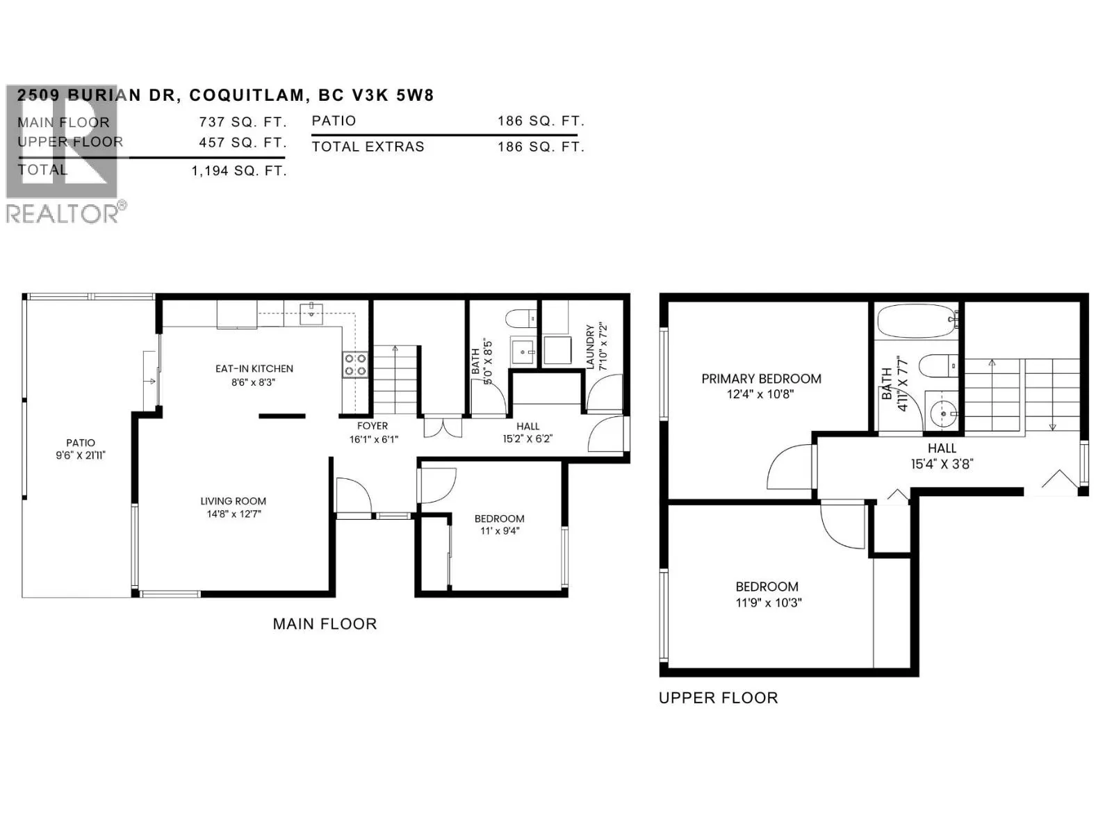
1194 sqft
Basement
Unknown, Crawl space (Unknown)
Listed on
-
Lot size
-
Tax
-
Days on Market
-
Year Built
1978
Maintenance Fee
-